Services


SJW Architects Ltd is an RIBA Chartered practice offering full architectural services from initial feasibility through to completion on site. We work with private residential clients, developers, housing associations and community organisations across Sheffield, the Peak District and London. Whatever the scale or sector, our approach is the same: thoughtful, well-crafted design that is grounded in its context, clearly documented and built to last.

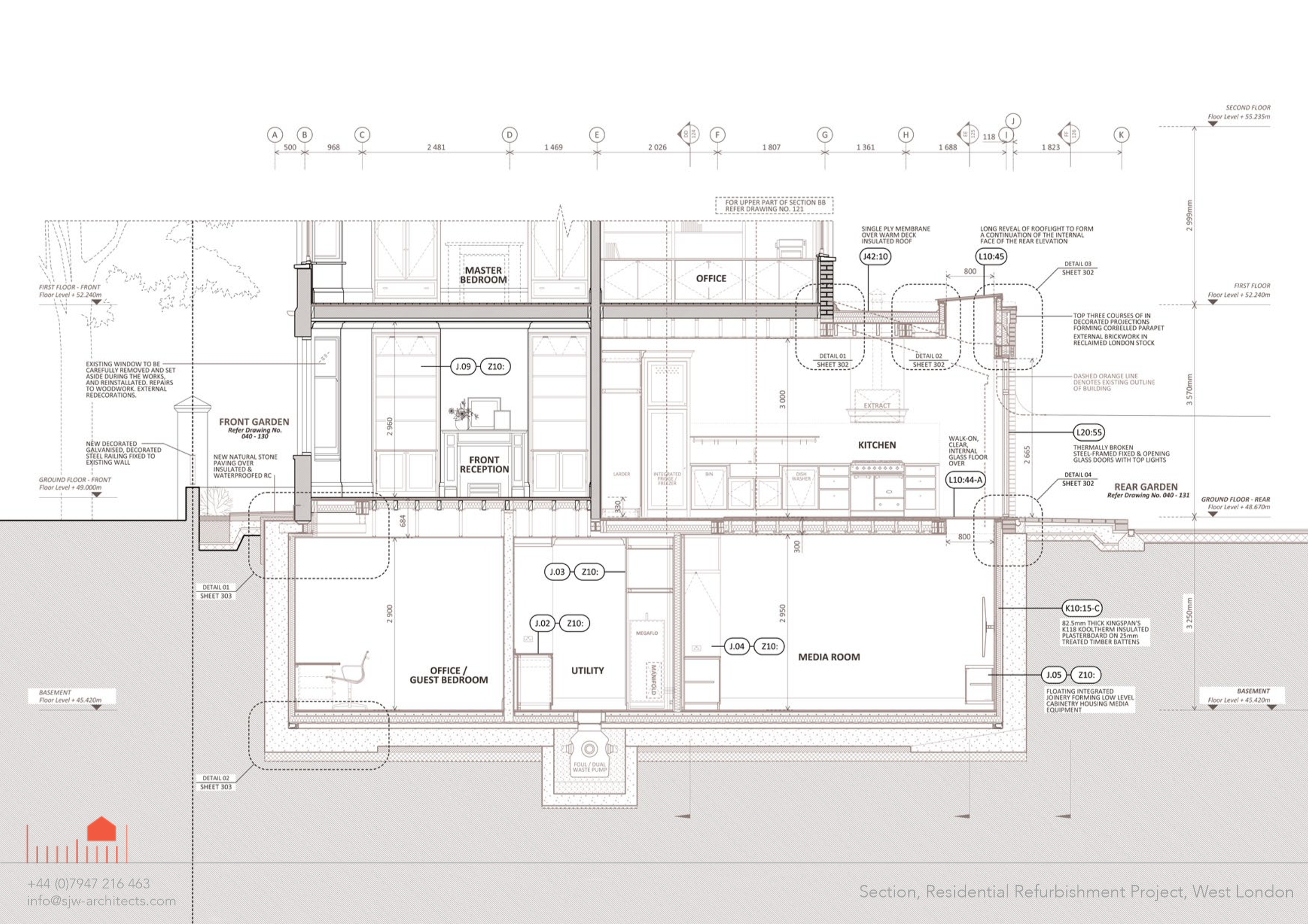
Private Residential


Good architecture begins with careful listening. Before we talk about drawings or planning, we want to understand how you live – how you move through your home, what light means to you, where the family actually gathers, what you've always wished was different. That conversation shapes everything that follows.

We work with people at all stages of a project: those with a clear brief and a site ready to go, and those who have little more than a feeling that something could be better. Both are equally good places to start.

Our projects range from modest but considered extensions to full refurbishments, new builds and the sensitive transformation of listed and heritage buildings. What they share is a commitment to design that is rooted in its place – responsive to the rhythm of a steep Sheffield street, the weight and texture of Peak District gritstone, the particular quality of light in a London Georgian townhouse. We don't have a signature style we apply to every project. We have a way of working.

For clients new to the process, we make it legible. We explain what each stage involves, what decisions need to be made and when, and what the realistic implications are in terms of time, cost and planning risk. We co-ordinate structural engineers, specialists and contractors, and can manage the project on site – staying involved until the work is complete and done well.

We are experienced in some of the most demanding planning contexts in England: the Peak District National Park, Sheffield's conservation areas and listed buildings of all grades. This is where careful, well-researched design matters most – and where the quality of the architecture itself can be the deciding factor in whether a consent is granted.

Start a conversation

Proposal for a small residential extension in the Peak District National, granted approval in 2025.

For Developers


We help developers unlock sites, reduce planning risk and add value through design that is intelligent, well co-ordinated and deliverable. We understand that viability, programme and contractor pricing matter as much as aesthetics, and we design with all of these in mind.

Our services for developers include site appraisals and feasibility studies to test capacity and planning potential; concept and planning-stage design proposals with clear, buildable layouts; co-ordination with structural, services and cost consultants; bespoke NBS specifications and full technical design packages; interior layouts and finishes tailored to market expectations; Principal Designer duties under the CDM Regulations 2015 and Building Safety Act 2023; and contract administration through construction.

As an RIBA Chartered Practice, we can tailor our involvement to suit your development – from feasibility-only studies to comprehensive, full-service delivery across all RIBA stages.

We have a proven track record of securing planning consent in challenging contexts, including the Peak District National Park, Sheffield's conservation areas and complex urban sites. We work closely with planning officers and present clear, evidence-based cases, helping bring forward sites that might otherwise seem unachievable.

Download our Developers Pack

Community & Social Housing


Our interest in architecture that serves communities runs deeper than the current portfolio suggests. Susi Wellings, director of SJW Architects, spent two years in Sri Lanka as country director for Architecture for Humanity, designing and overseeing post-tsunami reconstruction projects (community centres, pre-schools, libraries) delivered through a process in which the affected community itself became the client. One of those projects was shortlisted for the Aga Khan Award for Architecture. That experience shaped how we think about what architecture is for.

We believe everyone deserves access to good design. We are now actively building our practice in affordable housing, community buildings and retrofit – bringing the skills developed across residential, heritage and large-scale public work into projects with a genuine social purpose.

See Susi's earlier work in community & public architecture

Download our Community & Social Housing Pack

Community project in Sri Lanka for which Director Susi Wellings received the Observer Ethical Award.

We can support housing associations, community land trusts, local authorities and community groups with feasibility studies and capacity testing; planning-stage design proposals to support funding bids and approvals; sensitive refurbishment and adaptive reuse strategies to extend the life of existing buildings; technical design and tender packages; interior layouts and finishes designed for durability, affordability and long-term maintenance; and Principal Designer duties.

We understand the procurement routes, funding constraints and stakeholder relationships that underpin community-led and public sector projects. Our approach is collaborative by nature – we work closely with residents, community groups and local partners from the earliest stages, ensuring that what gets built is genuinely responsive to need.

Our planning experience in sensitive and constrained contexts is directly relevant here: many community housing schemes involve complex sites, heritage assets or National Park settings where a rigorous, evidence-led approach is essential.

Drawings for a garden studio and a chapel conversion for planning permission.

Planning & Heritage


Planning and heritage work runs through almost everything we do. We support clients from the earliest stage through to full submission and determination.

Our planning services include early advice and pre-application discussions with local authorities; planning applications and listed building consent; heritage impact assessments and supporting statements; co-ordination with conservation officers, heritage consultants and ecologists; and permitted development and prior approval advice.

We have particular depth of experience in the Peak District National Park, where we have secured consent for new builds, extensions and conversions in some of the most tightly controlled planning environments in England. We also work regularly in Sheffield's conservation areas and with Grade II listed buildings across the region.

For clients with heritage properties, our role often includes analysing the significance of the existing building, identifying opportunities for sensitive adaptation, and preparing the documentation needed to justify change – giving conservation officers the confidence to support proposals.

Have a planning or heritage question?
We’re happy to advise

Not sure which service you need? Most projects don't fit neatly into one category. If you have a building, a site or an idea and you're not sure where to start, get in touch for an initial conversation – we're happy to help you think it through before making any commitment.

Start a conversation